Best Floor Plan, Top FloorPlan Creator,Floor Plan Design ,Floor Plan Design ,Ai Floor Plan Generator Free

Floor Plan Services in Lucknow |House Naksha |Lucknow's Best House Plan House Map

A Comprehensive Guide to Floor Plans and AI Tools for Design

When it comes to designing a house, one of the most crucial elements is the floor plan. A floor plan is more than just a blueprint; it serves as the foundation of a building’s structure, ensuring the space is functional, aesthetically pleasing, and tailored to the needs of its occupants. In this blog, we will dive into the world of floor plans, from traditional methods of drawing them to modern AI-powered tools that can generate them automatically.

What is a Floor Plan? Best Top Floor Plan,Floor Plan Creator

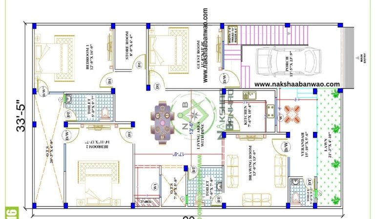
A floor plan is a scaled diagram that represents the layout of a building, typically viewed from above. It shows how rooms, corridors, and other spaces are organized within the building. Floor plans often include the placement of doors, windows, staircases, and fixed elements like kitchen cabinets, furniture, and bathroom fixtures.

The main purpose of a floor plan is to help architects, designers, and homeowners visualize how space will be used and to ensure that the building’s design is functional and efficient.

Types of Floor Plans Floor Plan,Floor Plan Creator

There are several types of floor plans, each serving a different purpose:

  1. Basic Simple Floor Plans: These are straightforward layouts used for small homes or buildings, focusing on the essentials. They typically consist of basic rooms, such as a living room, kitchen, bedrooms, and bathrooms.
  2. 3D Floor Plans: These are more advanced and provide a three-dimensional view of the space. 3D floor plans allow you to see the layout from various angles, giving a more realistic view of the space compared to traditional 2D plans.
  3. Ground Floor Plans: The ground floor is the primary level of a building. Ground floor plans focus on this level’s layout, including living areas, kitchens, and entrances. These plans are particularly useful when designing a home or commercial space.
  4. First Floor Plans: The first floor plan is used for upper-level layouts, typically for homes with multiple stories. It focuses on bedrooms, bathrooms, and additional living spaces that may be on the second or third floor.

The Importance of Floor Plans in Architecture Floor Plan,Floor Plan Creator

A well-thought-out floor plan is the backbone of any successful architectural project. It helps architects and designers solve several challenges, such as optimizing space, improving circulation, and ensuring the design meets the needs of its occupants. Here are some of the critical benefits of floor plans:

  • Space Efficiency: A good floor plan maximizes the use of space. By optimizing the arrangement of rooms, you can ensure that every square foot serves a purpose.
  • Functional Layouts: Floor plans help ensure the functionality of a home or building. The placement of rooms, doors, and windows affects how people move through the space.
  • Aesthetic Appeal: An aesthetically pleasing floor plan contributes to the overall visual appeal of a home or building. It reflects the design style and personality of the occupants.
  • Future Modifications: A well-designed floor plan allows for easy future modifications or additions. Knowing the structural layout enables you to make adjustments as needed.

Traditional vs. Modern Floor Plan Creation Floor Plan,Floor Plan Creator

Historically, floor plans were hand-drawn by architects using drafting tools, which required time and precision. Today, technology has revolutionized how floor plans are created, with digital tools and AI software making the process faster, more accurate, and accessible to everyone.

Traditional Methods

In the past, architects and designers used pencil, paper, and rulers to create floor plans. They would scale the plans manually, ensuring all dimensions were accurate. While effective, this method was time-consuming and left room for errors. Changes were difficult to make, and a single mistake could derail the entire design.

Modern Methods: Floor Plan Creators and Tools Floor Plan,Floor Plan Creator

Today, the process of creating floor plans is much more efficient, thanks to digital design software. These tools are user-friendly and offer advanced features, such as automated measurements and easy customization. Here are some of the modern methods available for creating floor plans:

  1. Floor Plan Creators
    Floor plan creators are software tools that help users design and visualize floor plans with ease. These programs offer intuitive drag-and-drop features, enabling users to add walls, doors, windows, and furniture with just a few clicks. Many of these tools are available for free or for a nominal fee and can be accessed online, making them suitable for homeowners, architects, and designers alike.
  2. Floor Plan
    Artificial Intelligence (AI) is playing a significant role in revolutionizing the design process. AI-powered floor plan generators can automatically create floor plans based on user input, such as the number of rooms, square footage, and desired layout. These tools use machine learning algorithms to predict and design the most efficient layouts based on user preferences.Benefits of -Floor Plans:
    • Speed and Efficiency: AI tools can generate floor plans in minutes, eliminating the need for manual design work.Accuracy: AI-generated plans are precise and error-free, ensuring that all measurements and dimensions are correct.Customization: AI tools allow users to tweak floor plans according to their needs, making it easy to experiment with different designs and layouts.
    Some popular AI-powered floor plan generators are free to use and offer features like 3D visualization, room placement optimization, and interactive editing. These tools are perfect for those who don’t have architectural experience but want a professional-looking floor plan.
  3. 3D Floor Plan Tools
    In addition to traditional 2D floor plans, 3D floor plan software allows users to create more immersive visualizations of their spaces. With 3D floor plans, you can see how light flows through the building, understand the relationship between different rooms, and even place furniture within the space.Key Features of 3D Floor Plans:
    • Realistic Visualization: 3D models give you a more realistic view of the space, helping you visualize the scale and feel of each room.
    • Virtual Tours: Many 3D tools offer virtual tours, allowing you to walk through your space digitally.
    • Design Experimentation: You can easily experiment with different layouts and styles to see what works best for your needs.

Free and Easy-to-Use Floor Plan Tools Floor Plan,Floor Plan Creator

There are many free online tools available for those looking to create floor plans. These tools often offer basic features for designing simple floor plans, but some may also provide advanced options, such as 3D visualization or access to a library of furniture and décor.

Some popular free floor plan creators include:

  • RoomSketcher: A versatile floor plan tool that offers both 2D and 3D design options.
  • Floorplanner: A free and easy-to-use tool with a drag-and-drop interface that makes creating floor plans simple.
  • SketchUp: While primarily used for 3D modeling, SketchUp offers features for floor planning and interior design.

These tools make it easy for homeowners and designers to create layouts without needing to hire a professional architect or designer.

How to Create a Floor Plan: Step-by-Step Guide Floor Plan,Floor Plan Creator

Creating a floor plan can be done in just a few simple steps, whether you’re using traditional methods or a digital tool.

  1. Define the Space: Begin by determining the dimensions of your space. For a new home, measure the land area. For a remodel or renovation, measure the existing structure.
  2. Choose a Layout Style: Decide on the type of layout you want—open plan, traditional rooms, or modern multi-level designs.
  3. Add Walls, Doors, and Windows: Start by placing walls around the perimeter and within the interior space. Add doors and windows in their appropriate locations.
  4. Place Furniture and Fixtures: To make the design more functional, place furniture, kitchen appliances, and bathroom fixtures in your floor plan.
  5. Refine the Plan: Review the layout for any potential issues like cramped spaces or poor flow. Use the design tool’s editing features to make adjustments.
  6. Visualize in 3D (Optional): If you’re using a 3D tool, visualize your floor plan to get a better understanding of the space and layout.
  7. Finalize the Plan: Once you’re satisfied with the layout, you can either save, print, or share the floor plan for further use.

Conclusion

Whether you are designing a new home, remodeling an existing one, or just exploring layout ideas, floor plans are essential tools for success. From traditional hand-drawn designs to advanced AI-powered floor plan generators, there are plenty of options available to suit different needs and skill levels. With the rise of digital and AI tools, creating floor plans has never been easier or more accessible.

Explore the world of floor plan design and discover how technology can help bring your dream space to life. Whether you’re a homeowner, architect, or interior designer, the right floor plan is key to creating a functional and beautiful space that meets all your needs.

Leave a Comment